Priced to Sell – 2021 Low-Maintenance Build

50 Kings Drive, Levin 5510

For Sale

Enquiries Over $615,000

Make Offer Book Viewing Contact Seller Add to Favs

Listing Reference #5204 . Listed: 07 Apr 2026

Property Specs

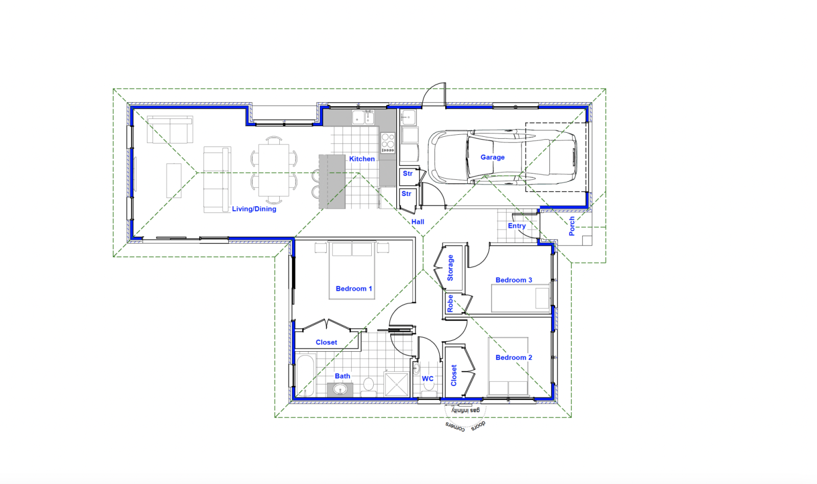
  • Bedrooms3
  • Bathrooms2
  • Living Rooms1
  • Dining Rooms1
  • Garaging1 car (single)
  • Off-street car parks2
  • Floor Area129 m2
  • Land Area330 m2
  • MaterialBrick
  • Levels1
  • TypeHouse
  • TitleFreehold
  • Year Built2021

Phone Number

You need to be logged in to contact the property owner.

If you already have an account please login here. Otherwise click here to register.

Seller's Description

Modern, Low-Maintenance Living in North West Levin

Completed in July 2021, this modern 129m² home in sought-after North West Levin offers comfortable, low-maintenance living on a 330m² section. Built in light-coloured brick for easy care and lasting appeal, this near-new property is ideal for first-home buyers, downsizers, or investors.

The home features three bedrooms, a central bathroom with convenient access from the master, plus a second separate toilet for added convenience. A carpeted single internal-access garage enhances practicality and comfort, while the layout delivers easy everyday living.

Enjoy a fully fenced section with private neighbours, perfect for relaxing or letting kids and pets play safely. The property also includes a heat pump for year-round comfort and low-maintenance grounds so you can spend more time enjoying your home.

Healthy Homes report available, along with full plans.

Open home Sunday
Call for a chat or to arrange a private viewing.
Priced to sell — don’t miss this opportunity.

Special Features

Patio. Enclosed Garden.

Open Days

12 Apr 2026 (Sun)

Open home from: 11:00 AM to 12:00 PM   Register to attend

Request a custom date and time

Other Details

Services
  • Water supplyCouncil
  • Septic systemCouncil
Property Condition
  • InteriorModernised
  • ExteriorWell presented
  • GardenLandscaped
LINZ Info
  • Title number: 904434
  • Legal description: Fee Simple, 1/1, Lot 1 Deposited Plan 540079, 330 m2
Chattels

Included in the sale: Fixed Floor coverings. Window coverings. Light fittings. Stove. Hob/Cooktop. Oven. Dishwasher. Heat pump. Range hood. Garage door openers. Clothesline. Blinds. Curtains.

Downloads for 50 Kings Drive, Levin

There are no documents available to download for this property. You can try to contact the seller to ask if they have the information you need.

Contact Seller

You might also like

Search Again

Enter a town, city, region or postcode into the search box and we'll show properties in and around that area.